飲食店作りのノウハウ
「食事メインでファミリー向けの居酒屋にしたい」「大人の雰囲気のあるシックなバーにしたい」など、まずはお客様がどんな店舗にしたいのかをしっかりと固めることが大切です。食事にこだわったお店にしたい場合は厨房設備の設計が重要ですし、バーなど雰囲気を重視したお店にしたい場合はフロントのデザインにこだわった設計が必要となります。
ショップデザインピースでは、お客様が目指す店舗のイメージを詳細にうかがいます。まずお客様の業態やコンセプト、テーマカラーや雰囲気などをうかがい、そこから内装素材や厨房設備・機器を検討。お客様のイメージを忠実に再現し、意匠性と機能性も兼ねそなえたデザイン設計をご提案します。その後、お客様の「こんな店舗にしたい」という思いを大切に、店舗づくりをお手伝いします。

ケース事例
お客様のご要望・状況
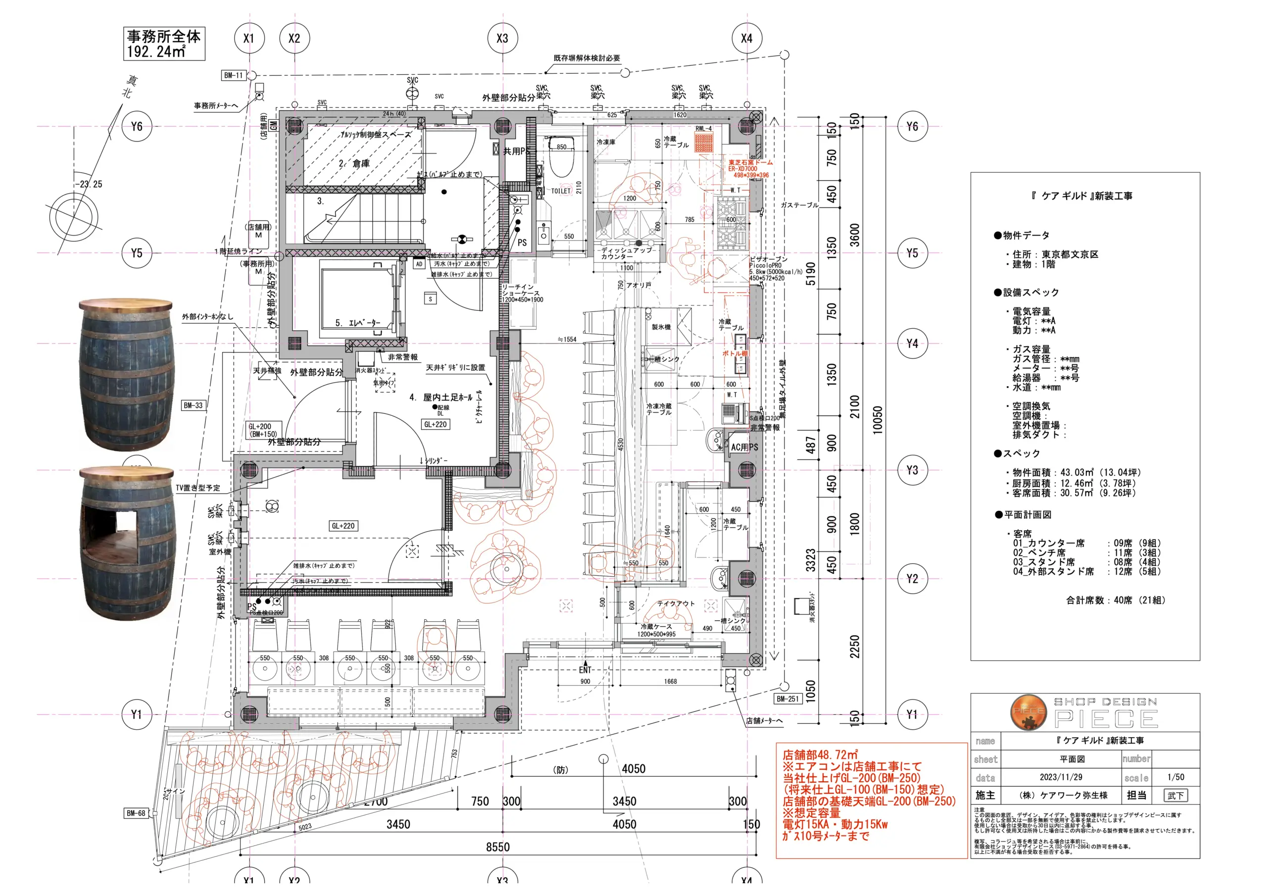
「隠れ家的ダイニングをしたい!」というお客様でした。当初は居抜き店舗で検討されていましたが、厨房設備の使い勝手が悪く、また原状イメージを消す為に費用がかかりすぎるのが懸念でした。
また、それ以外にも物件譲渡の費用もかかるため見送り、スケルトン物件にてご契約いただきました。狭くビルの奥に位置するため、ご要望にもぴったりの物件でした。
ショップデザインピースのご提案
デザインはスタイリッシュな居心地の良い空間になるよう心がけました。その際、お客様がイメージ写真などを数点ご用意してくださったので、イメージが分かりやすかったです。費用を抑えるため、壁は既存のものを補修して塗装することにしました。
開業ストーリー
① 相談・打ち合わせ

ショップデザインピースの武下さんとは、店舗専門不動産屋が催したセミナーの無料相談会にてお会いしました。その時の私は「開業したい!」という目標はあったものの、具体的にどうしたらいいか分かりませんでした。そのため、後日改めて打ち合わせの時間を設定してくれて、丁寧に説明してもらえたのでとても助かりました。

このお客様はまだ物件がない状態でした。打ち合わせでは実際にかかる費用など、開業時に知っておいていただきたい内容についてお話しました。ご要望を満たすため、最終的にはスケルトン物件をご紹介し、契約していただきました。

ショップデザインピースの武下さんとは、店舗専門不動産屋が催したセミナーの無料相談会にてお会いしました。その時の私は「開業したい!」という目標はあったものの、具体的にどうしたらいいか分かりませんでした。そのため、後日改めて打ち合わせの時間を設定してくれて、丁寧に説明してもらえたのでとても助かりました。

このお客様はまだ物件がない状態でした。打ち合わせでは実際にかかる費用など、開業時に知っておいていただきたい内容についてお話しました。ご要望を満たすため、最終的にはスケルトン物件をご紹介し、契約していただきました。

② デザイン設計のご提案

物件を決めたら、次は間取りやデザインでした。頭の中で考えていたプランをいろいろと武下さんに説明し、それを図面におこしてくれました。動線などなかなか私にはわからないことについても提案していただきました。感心することばかりでした。

いろいろご要望がありましたので、一つ一つ丁寧にまとめていきました。結果、スタイリッシュな居心地の良い空間にし、貸し切りパーティーも取れるようなデザインにいたしました。

物件を決めたら、次は間取りやデザインでした。頭の中で考えていたプランをいろいろと武下さんに説明し、それを図面におこしてくれました。動線などなかなか私にはわからないことについても提案していただきました。感心することばかりでした。

いろいろご要望がありましたので、一つ一つ丁寧にまとめていきました。結果、スタイリッシュな居心地の良い空間にし、貸し切りパーティーも取れるようなデザインにいたしました。

③ 内装工事

図面が決まり、いよいよ工事でした。武下さんはなにやら難しそうな顔をされてしましたが(笑)この頃には安心して任せていましたね。

古い建物なので躯体をいじる事が難しいため、換気設備に制限がでていましたがなんとかクリアできました。排水に関してもスケルトンの状態の時にはありませんでした。そのため、共用トイレから取り出しいたしました。

図面が決まり、いよいよ工事でした。武下さんはなにやら難しそうな顔をされてしましたが(笑)この頃には安心して任せていましたね。

古い建物なので躯体をいじる事が難しいため、換気設備に制限がでていましたがなんとかクリアできました。排水に関してもスケルトンの状態の時にはありませんでした。そのため、共用トイレから取り出しいたしました。

④ 店舗完成・開業

できあがったお店を見て「まさに私のやりたいお店だ!」と感じました。打ち合わせからずっと武下さんがついてくれていたので、途中でズレなくできたのかな、と思います。

イメージ通りのスタイリッシュな、リビングのような空間に仕上がりました。最後に昔からの交遊のあるアーティストさんに壁面を描いてもらい優しいイメージをプラスすることができたのも良かったですね。

できあがったお店を見て「まさに私のやりたいお店だ!」と感じました。打ち合わせからずっと武下さんがついてくれていたので、途中でズレなくできたのかな、と思います。

イメージ通りのスタイリッシュな、リビングのような空間に仕上がりました。最後に昔からの交遊のあるアーティストさんに壁面を描いてもらい優しいイメージをプラスすることができたのも良かったですね。

飲食店のオーナーを目指すなら
どんなお店をつくりたいですか?
やはり重要なのは来店された方に楽しんでもらえること。また来たいと思っていただけること。そのため、狙いたいターゲットや行動にマッチした雰囲気づくりが大切になっています。
ショップデザインピースは来ていただきたい方に訴求できるようなデザインやお店づくりのお手伝いをいたします。


